For Sale
Radalco House, Hounslow
£2,150,000
Property Summary
O.I.G Real Estate are pleased to bring to market this Freehold investment opportunity.
Full Details
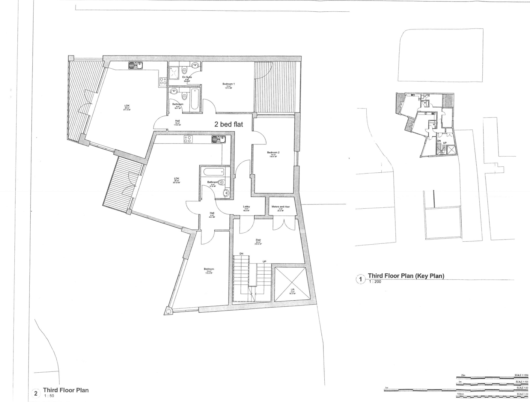
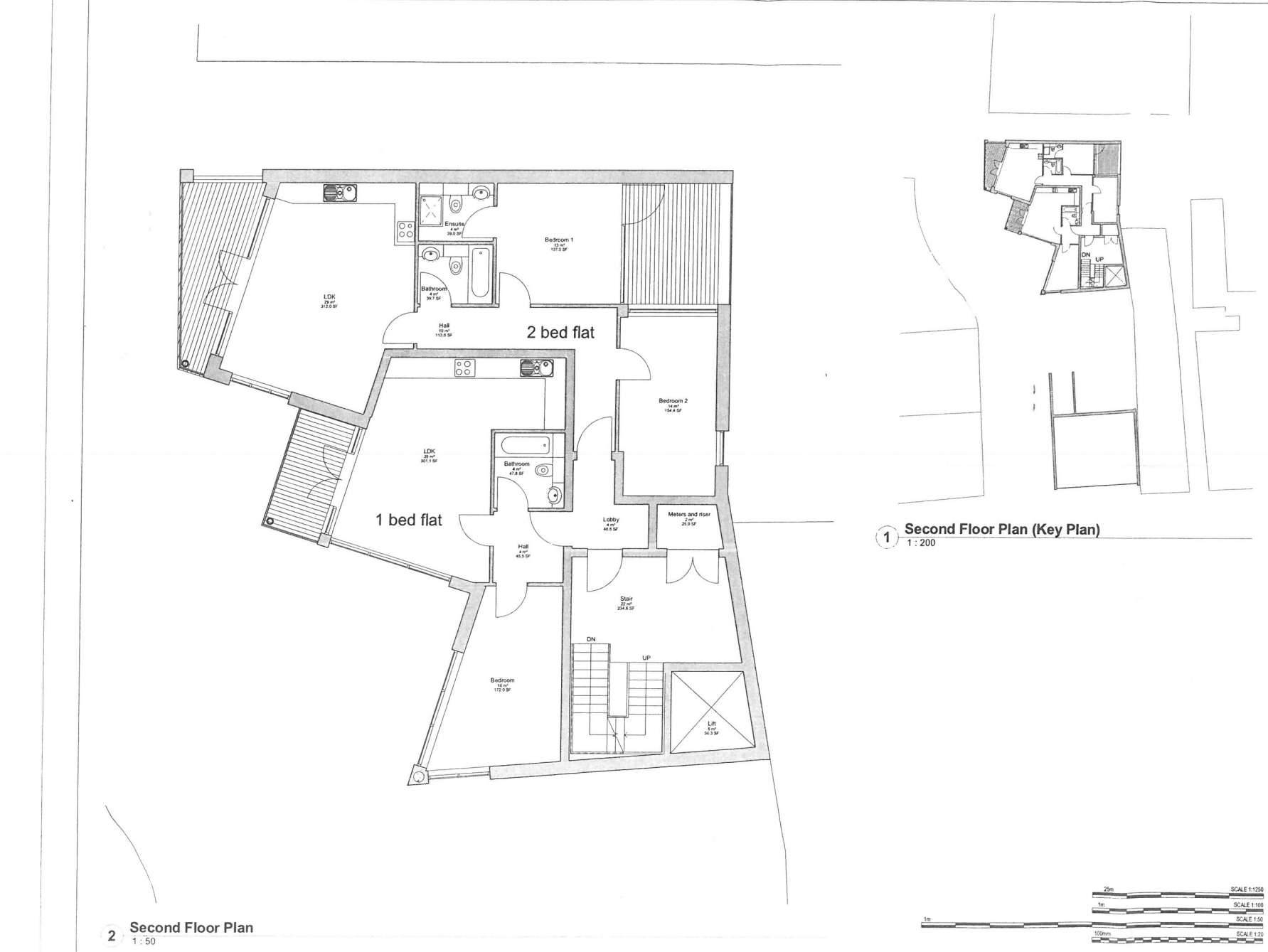
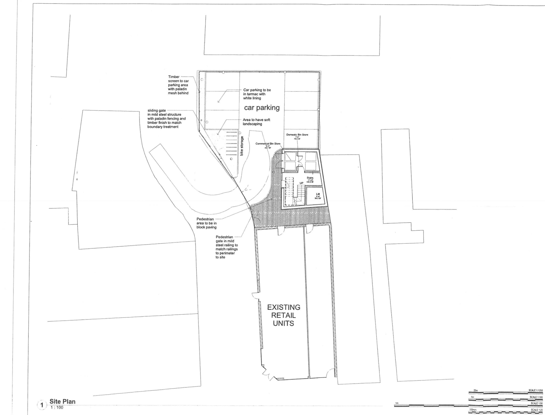
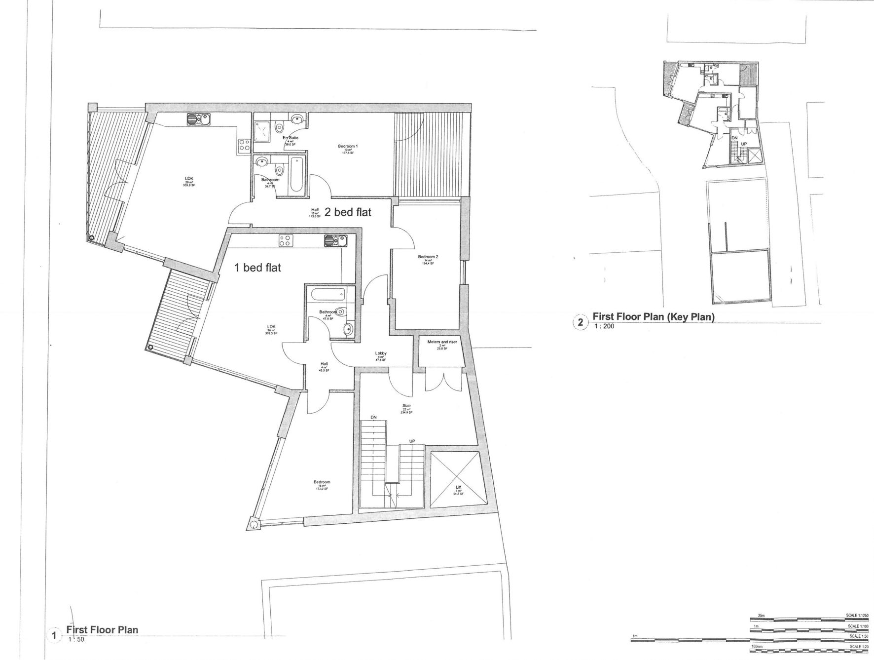
The property consists of 4x2 bedroom apartments, 3x1 bedroom apartments & 7 parking spaces with a total annual income of £122,784.00 per annum.

